13208166786
282644463@qq.com
搜索
城市
首页
关于我们
多边形帐篷
新闻中心
成功案例
联系我们
多边形帐篷
网站首页
>
多边形帐篷
1
/
4
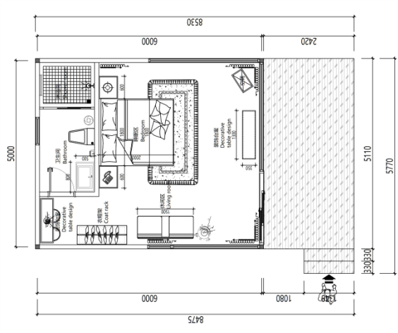
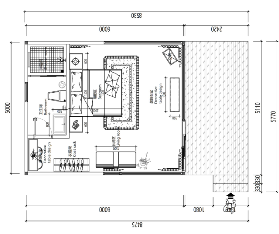
四边形帐篷(江南忆)
主材:优质碳钢钢管(氟碳漆防锈处理)
外膜:PVDF优质膜材
内膜:PVC
墙体:双层中空玻璃规格:4m*6m套内面积:24㎡
投影面积:48.28㎡
抗风等级:10级以下
产品咨询
产品介绍
下一篇:
六边形帐篷(竹林物语)
产品咨询
提交留言